INFISSO IN PVC Schüco Living PVC-U

  • Home
  • Schüco Living PVC-U

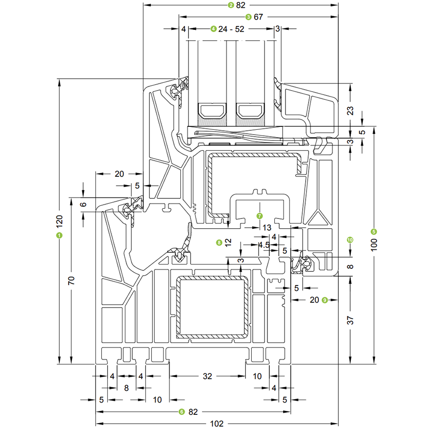
Il sistema per porte e finestre in pvc Schüco Living PVC-U è un innovativo sistema di profili a 7 camere, progettato come sistema Twin, Beat o Medium Gasket.

Isolamento termico

Profilo a 7 camere con geometria ottimizzata e una profondità di base del tallone di 82 mm per il miglior isolamento termico

Vetrata con vetro di spessore da 28 mm a 52 mm (triplo isolamento termico)

Forma ottimizzata per una minima dispersione di calore nell’area della guarnizione

La variante con assetto medio è adatta per case passive (certificata da IFT Rosenheim)

Sicurezza

Gli stessi accessori per anta e telaio

Per il sistema di guarnizioni centrali, tutti i componenti sono protetti contro la corrosione e lo sporco

La larghezza di 13 mm delle guarnizioni consente l’utilizzo di componenti antieffrazione

Maggiore profondità per una maggiore sicurezza

Resistenza massima allo scasso: RC2

Comfort

La larghezza visibilmente ridotta di 120 mm (combinazione di profili standard) sottolinea l’eleganza del profilo
Ottimi valori di isolamento acustico
La forma delle guarnizioni rende molto semplice la pulizia dei vetri
La guarnizione da 5 mm permette una chiusura agevole delle finestre

Design

Una gamma completa di opzioni di placcatura in alluminio
Schüco Automotive Finish è anche una brillante opzione di design con esclusivi colori metallizzati
I profili possono essere personalizzati con un’ampia gamma di tipi di finto legno e una generosa mano di colori semplici
Le guarnizioni si combinano discretamente con l’aspetto della finestra.