INFISSO IN PVC Sistema Synego TRP

  • Home
  • Sistema Synego TRP

Sistema Synego TRP – per porte e finestre in pvc

  Consigliato per case a basso consumo energetico e ristrutturazioni ad alta efficienza energetica

Scegli Synego per case moderne ed efficienti dal punto di vista energetico

 

Risparmia energia, non finestre!

Le nuove finestre SYNEGO sono il programma di salvataggio ideale. Rispetto alle attuali finestre standard, SYNEGO ti offre un isolamento termico superiore al 50% in più .

Con SYNEGO lascia il rumore alle spalle

Rumore intenso del traffico, tosaerba del vicino: ogni giorno sei circondato da rumori forti. Con SYNEGO lasci semplicemente uscire il rumore e la tua casa si trasforma in un’oasi di pace.

Con SYNEGO ti senti protetto

In casa significa sicurezza, comfort, pace e privacy. Grazie alle finestre SYNEGO puoi sentirti al sicuro a casa.

Alte prestazioni / altezze elevate

Respinge lo sporco ed è facile da curare grazie alla rivoluzionaria formula HDF.

La finitura ad alta definizione (HDF) dona alle finestre la lucentezza quotidiana proprio come quando sono nuove. Le finestre non solo restano pulite più a lungo, ma possono anche essere pulite più facilmente.

Diversità multicolore con le finestre Synego

Con SYNEGO puoi personalizzare la tua falegnameria in base alle tue preferenze: un bianco brillante, decori in legno caldo con superfici strutturate o colori alla moda e solidi.

La soluzione perfetta indipendentemente dallo stile architettonico

Grande, piccolo, rettangolare o rotondo: con SYNEGO hai a disposizione una moltitudine di varianti strutturali architettoniche.

Un mondo di colori disponibile per TRP Synego

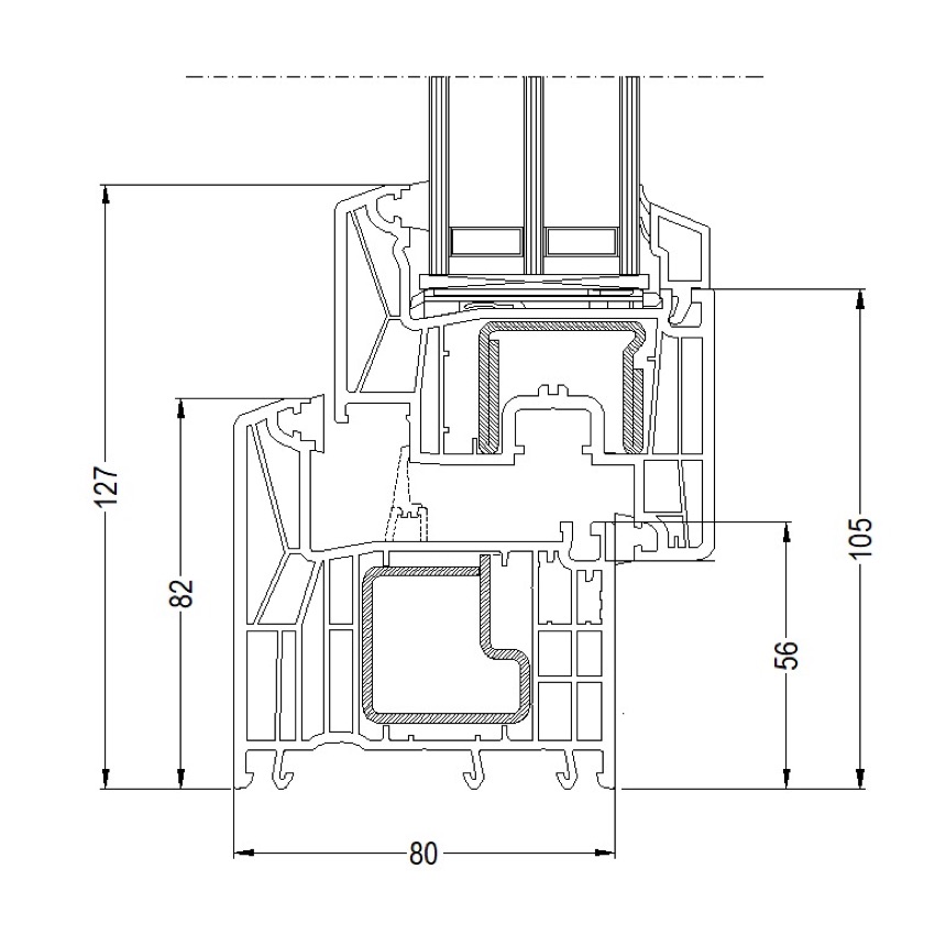
Sezioni del profilo TRP Synego